高效节能,速干无忧!解放你的生产力,选择纽森牌高压干燥机!
√标准制造 √经久耐用 √维护简单

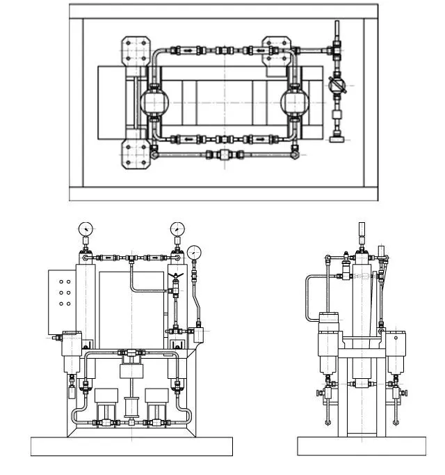
高压干燥机沉淀原理:
高压干燥机的工作原理主要是通过高压气体和吸附剂之间的交替作用来实现干燥的过程。当湿润的气体通过吸附剂时,水分被吸附剂吸附。随后,通过提高压力或者改变温度的方式,使吸附剂释放水分,再次实现干燥。这种循环过程能够持续地去除湿气,从而实现高效的干燥效果。
可靠性:
吸附剂罐在入口处设计有具备冷凝液分离和储存功能的高效沉淀室。此设计起到截留冷凝液不使其接触干燥剂的作用,冷凝液进入沉淀室后被滞留,在随后的再生过程中通过再生气排放。
经济性:
高压无热再生吸附式干燥机是压缩机连动控制的标准配置。该智能控制系统储存干燥机最近的状态参数。在重新启动干燥机时,程序从中断点开始继续运行,从而防止干燥剂超负载。此方法提高了设备的运行可靠性,并能实现与压缩机运行联动,达到节能效果。
维护成本:
所有零部件和组成元件均可从前部接触和连接。所有组件独立安装,不会造成管道应力。采用三个独立的控制阀,便于维护,并且减少了更换零部件的支出。其结构具有特殊抗震性能,便于搬运。


每台纽森牌高压干燥机均根据特定使用条件以及用户要求进行定制,以确保获得最大的成本效益。我们将为您提供各种工业气体处理和干燥的解决方案。


我们始终奉行业标准,设计制造工艺卓越,运行稳定,安全可靠的工业气体设备。